NEIRO TOYS
Мебель и интерьер
Россия, Красноярск
Апрель 2024
Заказчику требовался дизайнер для разработки проекта с чертежами под изготовление и визуализацию с фотопривязкой к месту торгового островка для ТРЦ.
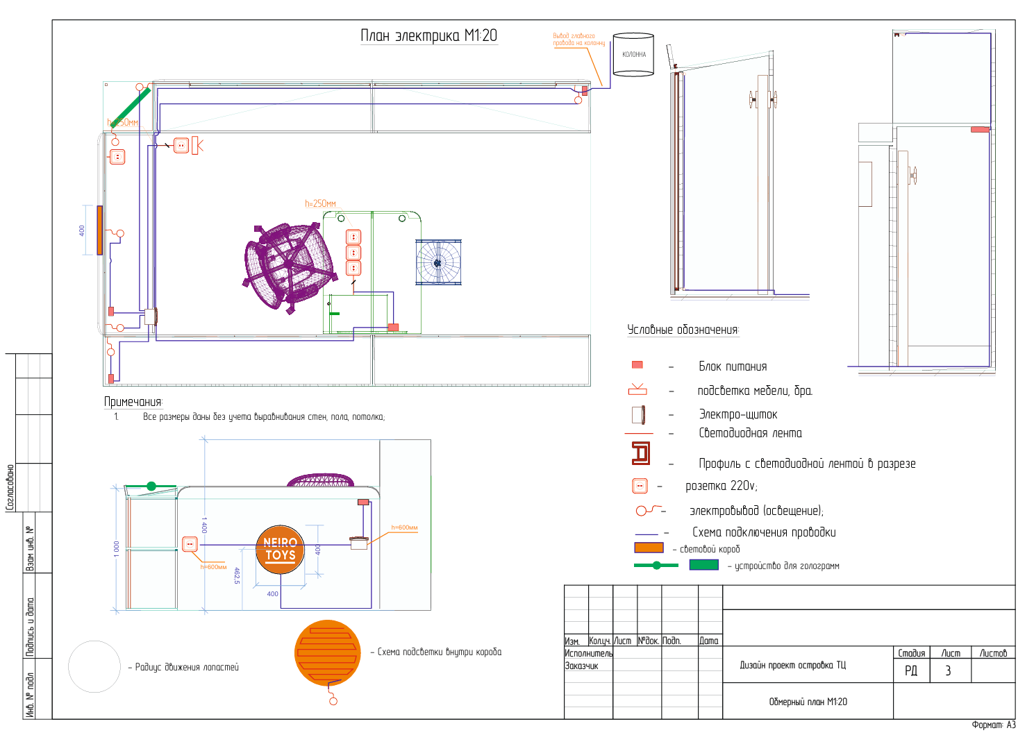
Также запросили сделать архитектурный и электротехнический проекты для данной разработки.
Все необходимые файлы по логотипу, и плану примерной расстановки - были переданы нам, с которыми мы работали.
Мы со своей стороны предоставили заказчику следующее:
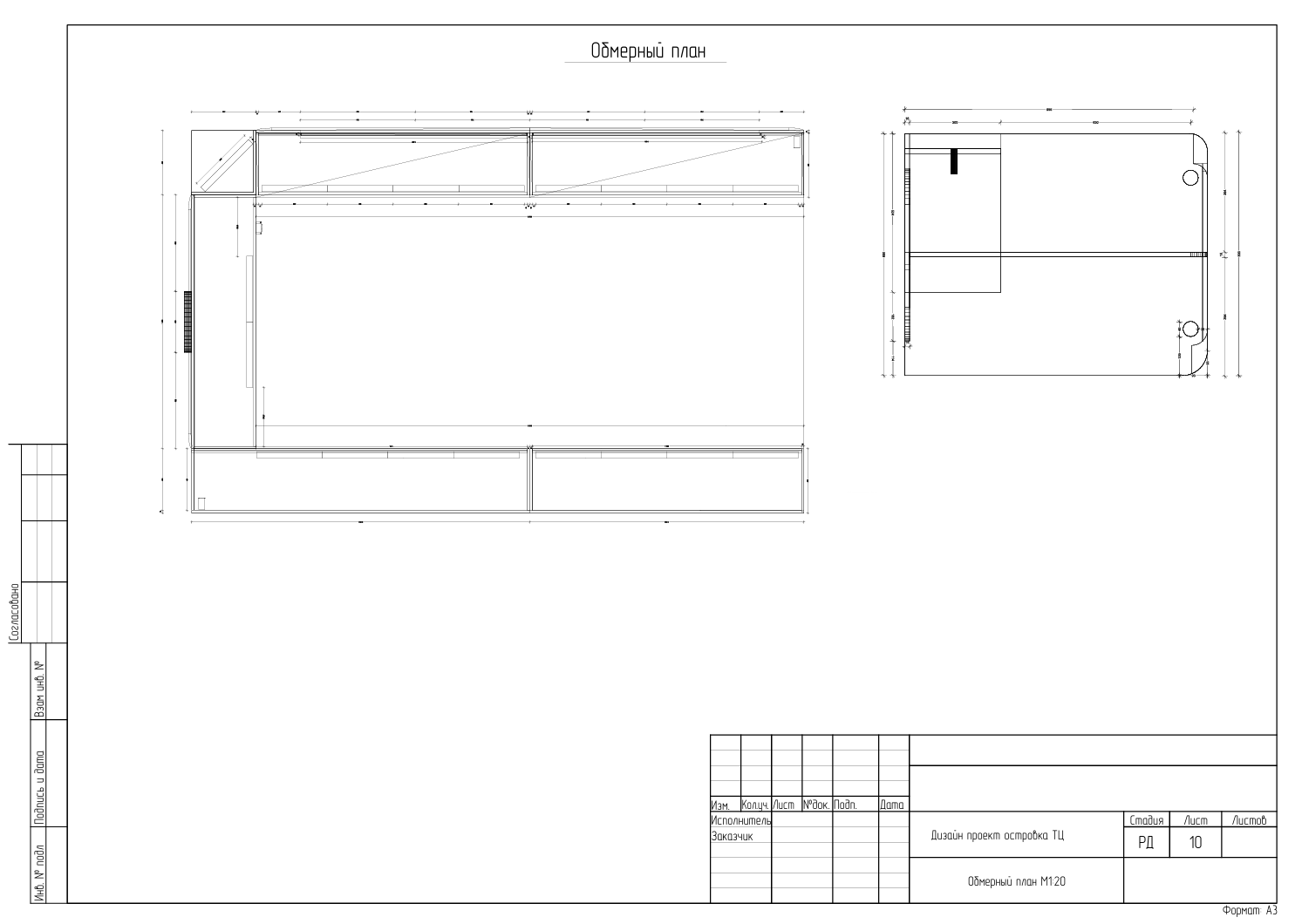
- Разработали проектный план с визуализацией
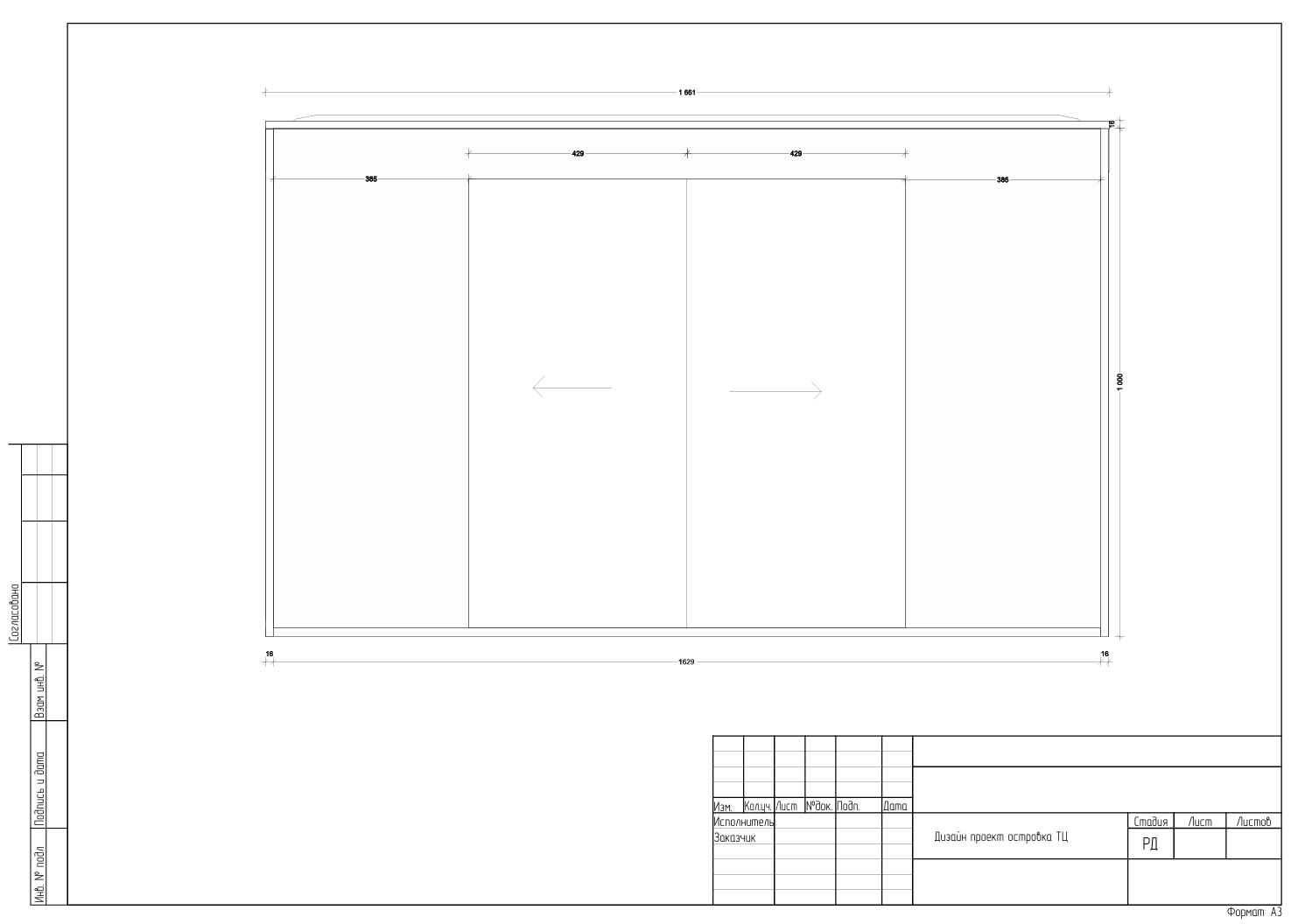
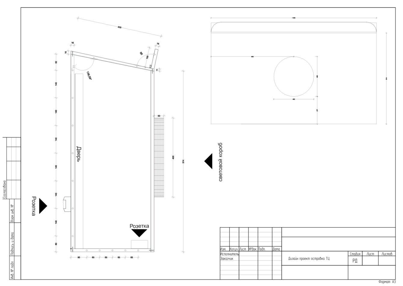
- Полную подготовку проектного плана с размерами, материалами, электрикой и монтажом, описание материалов.
- Сводный расчет в виде таблицы с примерными стоимостями затрат по материалам исходя из региона (города)





Разработан функциональный и эстетичный дизайн островка для ТЦ с полным комплектом рабочей документации (стадия РД). Проект соответствует техническим и эксплуатационным требованиям, готов к согласованию и реализации.
![]()
Евгений Хохлов
Россия Иваново
Дизайн островка для ТЦ сочетает эргономику, визуальную привлекательность и функциональность. Документация (стадия РД) проработана детально, соответствует нормативным требованиям и готова к реализации. Учтены особенности размещения в торговом пространстве и потребности арендаторов.