Ищете крутые кейсы в digital? Посмотрите на номинантов Workspace Digital Awards 2026!
Евгений Хохлов
Дизайн пространства салона цветов "FLOVE.AE"
Евгений Хохлов
#Фирменный стиль#Иллюстрации#3D моделирование

Дизайн пространства салона цветов "FLOVE.AE"

139 
Евгений Хохлов Россия, Иваново
Поделиться: 0 0 0
Дизайн пространства салона цветов "FLOVE.AE"
Компания

FLOVE.AE

Сфера

Строительство и ремонт

Регион

Объединенные Арабские Эмираты, Dubai

Сдано

Декабрь 2025

Задача

Данный проект представляет собой комплексное дизайнерское решение для нового премиального салона цветов "FLOVE.AE", расположенного в Дубай.

Решение

Было четко зонировано пространство:

1) Приветственная зона и витрина: Минималистичная, но эффектная, работает на привлечение внимания с улицы.

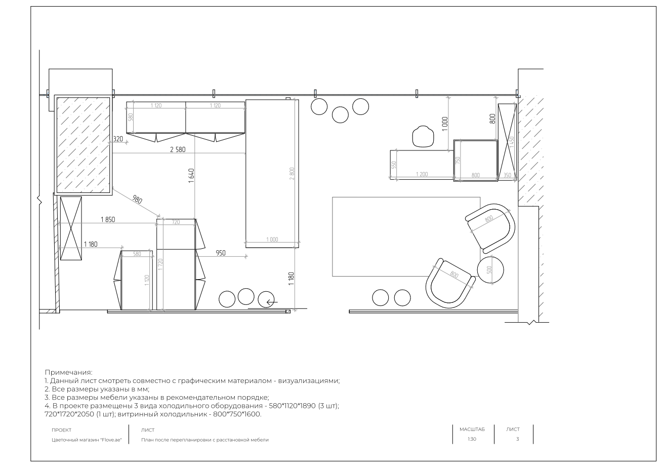
2) Основная торговая зона: Свободная планировка с мобильными стеллажами-подиумами для демонстрации композиций, обеспечивающая легкую реорганизацию под сезонные коллекции.

3) Зона консультации и оформления заказов: Полуоткрытый "кабинет флориста" с удобной стойкой, открытыми полками для инструментов и образцов, интегрированный в общее пространство, но выделенный светом и материалом.

4) Технические помещения: Грамотно изолированные подсобное помещение для хранения запасов.

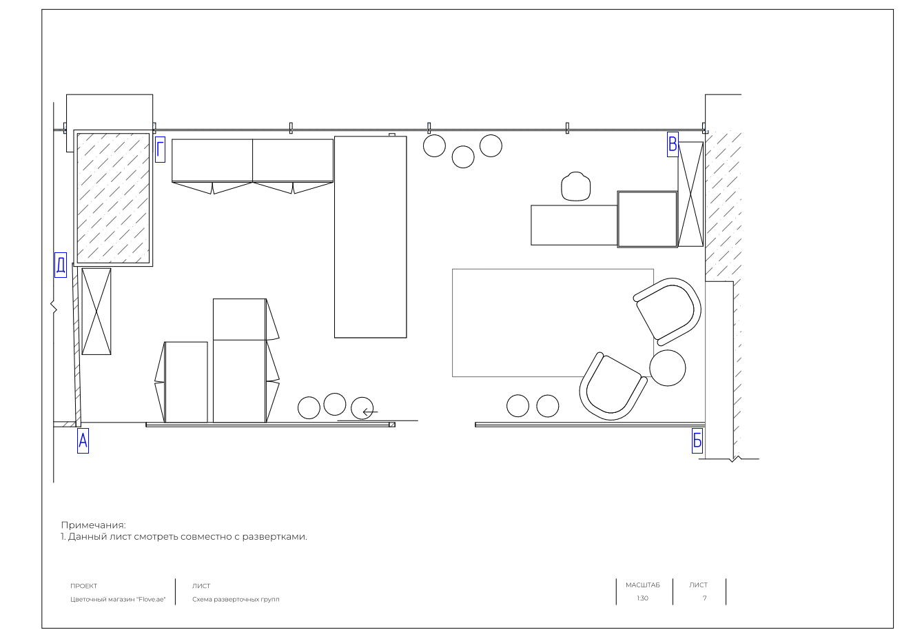
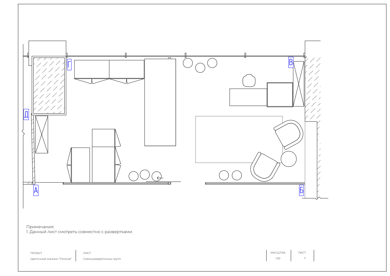
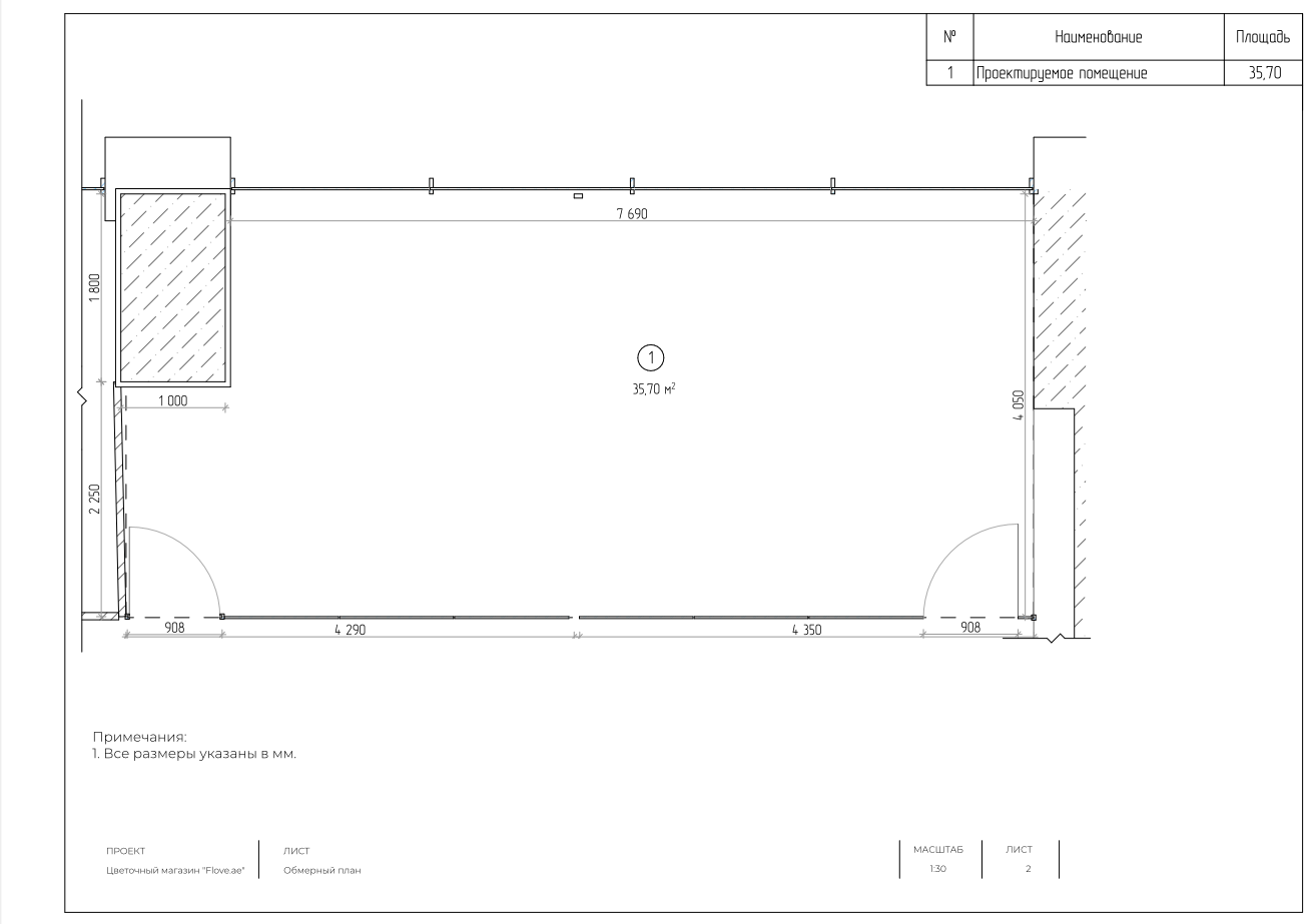
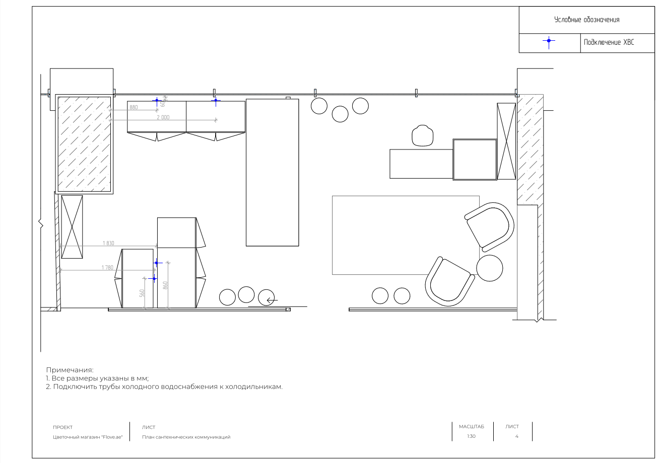
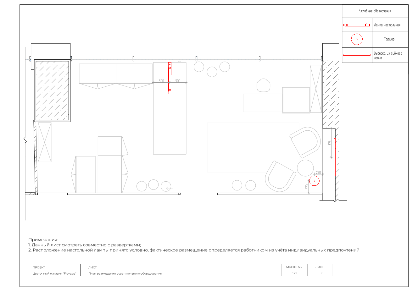
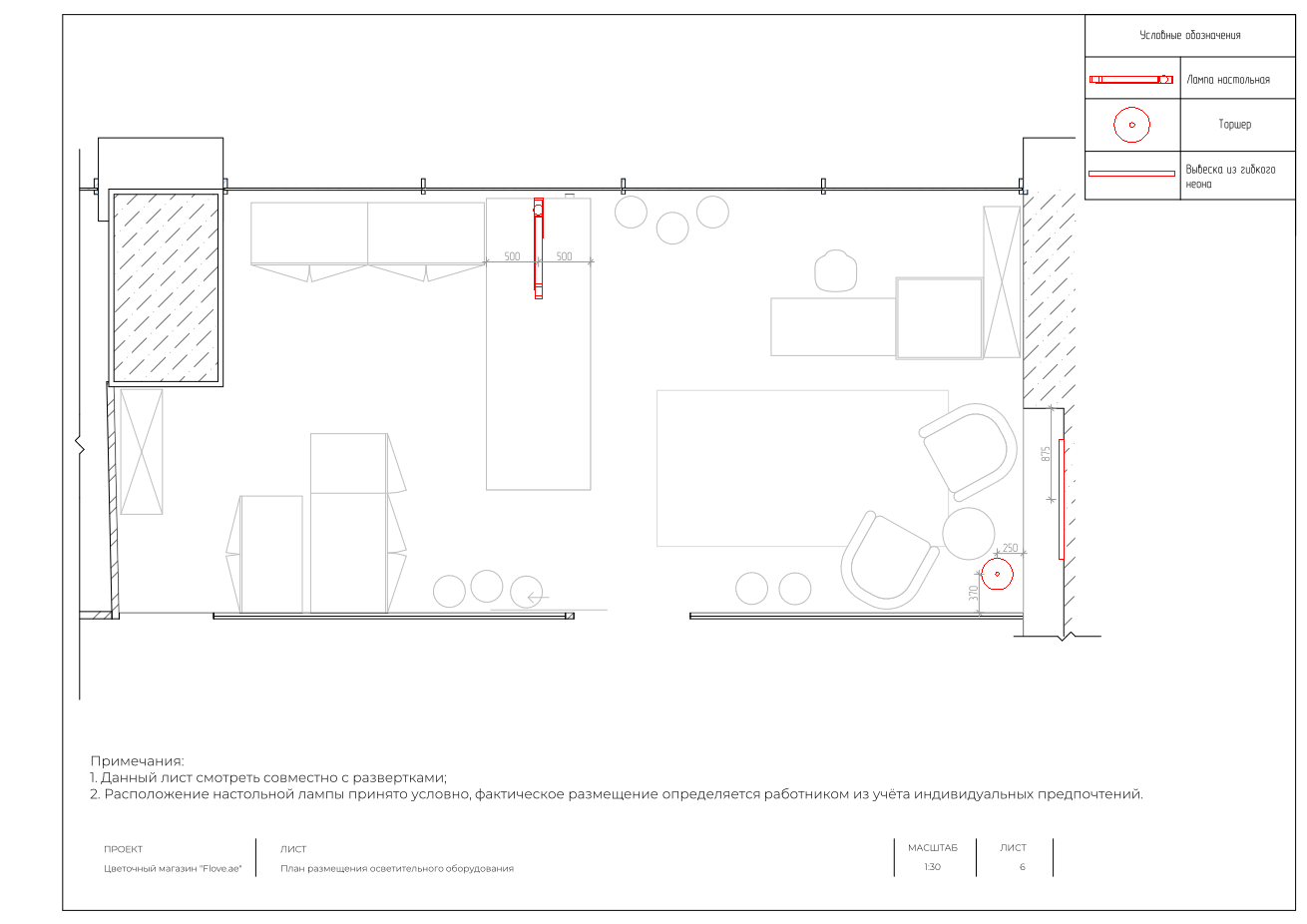
Рабочая документация

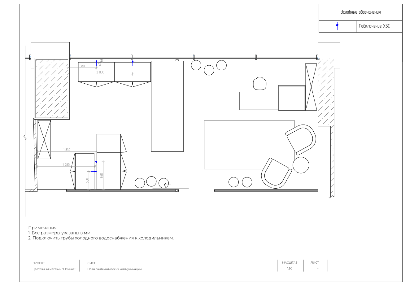
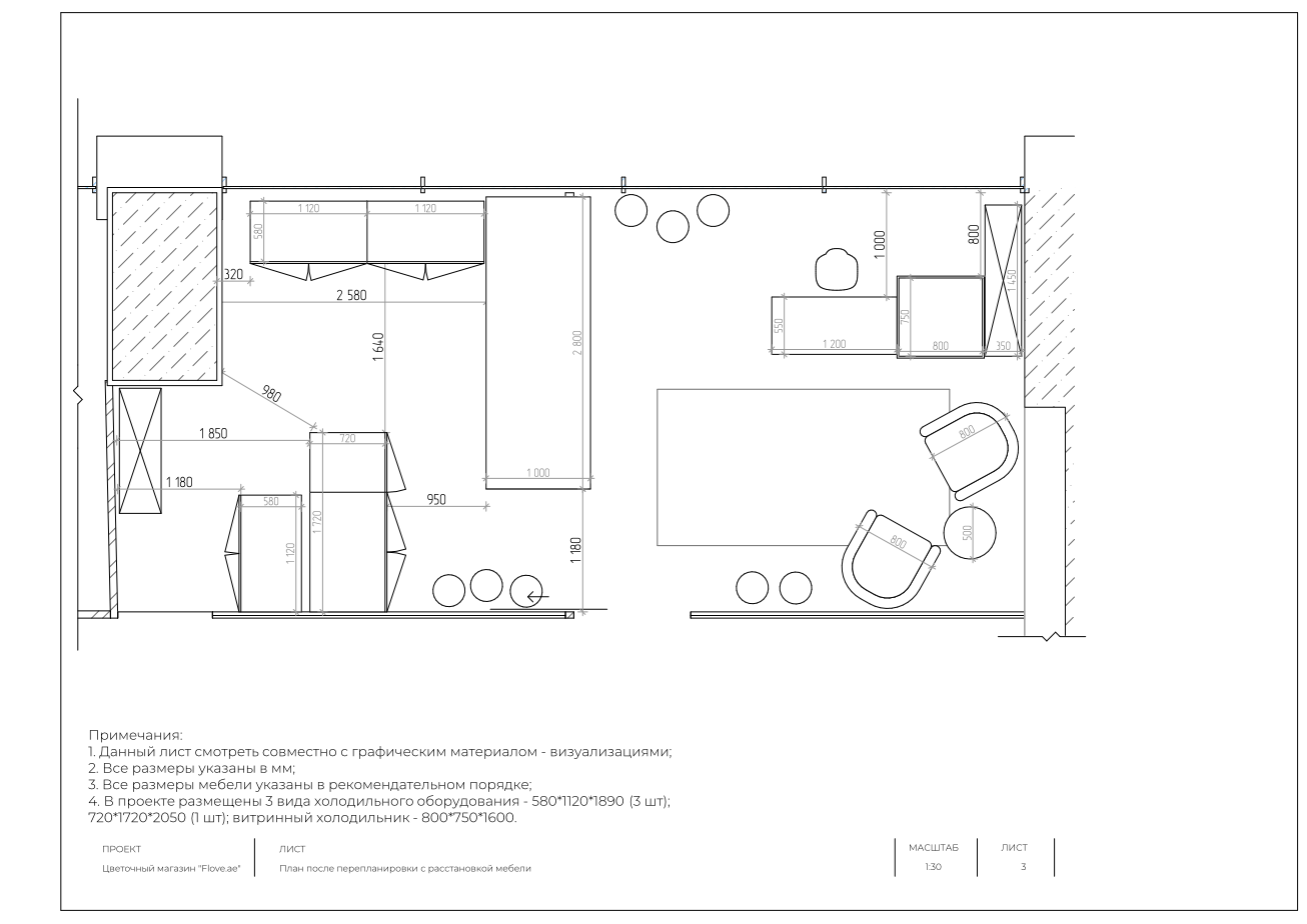
Для реализации проекта были подготовлены чертежи, включающие:

- План демонтажа/монтажа перегородок.

- План расстановки мебели и оборудования.

- План полов с указанием типов покрытий и уровней.

- Развертки стен с отделкой.

- План потолка со схемой освещения и привязкой всех светильников.

- План размещения розеток и выключателей.

1Фотореалистичная визуализация

2Рабочие чертежи

Результат

Проект реализует главную задачу: создание не просто магазина, а уникального бренд-пространства, где каждый элемент дизайна работает на укрепление ценности "FLOVE.AE" в восприятии клиента.


Стек технологий


Оцените кейс
Спасибо за оценку
Выскажите мнение
Авторизуйтесь, чтобы добавить свой комментарий.
оставить заявку

Хотите заказать похожий проект?

Оставить заявку