Ищете крутые кейсы в digital? Посмотрите на номинантов Workspace Digital Awards 2026!
Евгений Хохлов
Дизайн шоурума "KOVROTEKA" г. Москва
Евгений Хохлов
#Фирменный стиль#Иллюстрации#3D моделирование

Дизайн шоурума "KOVROTEKA" г. Москва

122 
Евгений Хохлов Россия, Иваново
Поделиться: 0 0 0
Дизайн шоурума "KOVROTEKA" г. Москва
Компания

КОВРОТЕКА

Сфера

Мебель и интерьер

Регион

Россия, Москва

Сдано

Апрель 2025

Задача

До начала работы над проектом подробное обсудили детали с заказчиком. Нам предоставили план помещения, референсы и общие пожелания по стилю и функционалу. Проанализировали материалы, чтобы понять концепцию, которую хотят воплотить.

На основе собранной информации начали разрабатывать визуальную концепцию выставочного пространства.

Мы создали несколько эскизов, учитывая:

1) Зоны для выставок, переговоров и отдыха

2) Цветовые схемы, материалы и освещение

Решение

Используя программы для 3D-визуализации, создали реалистичные рендеры, которые позволили заказчику увидеть, как будет выглядеть пространство после реализации проекта.

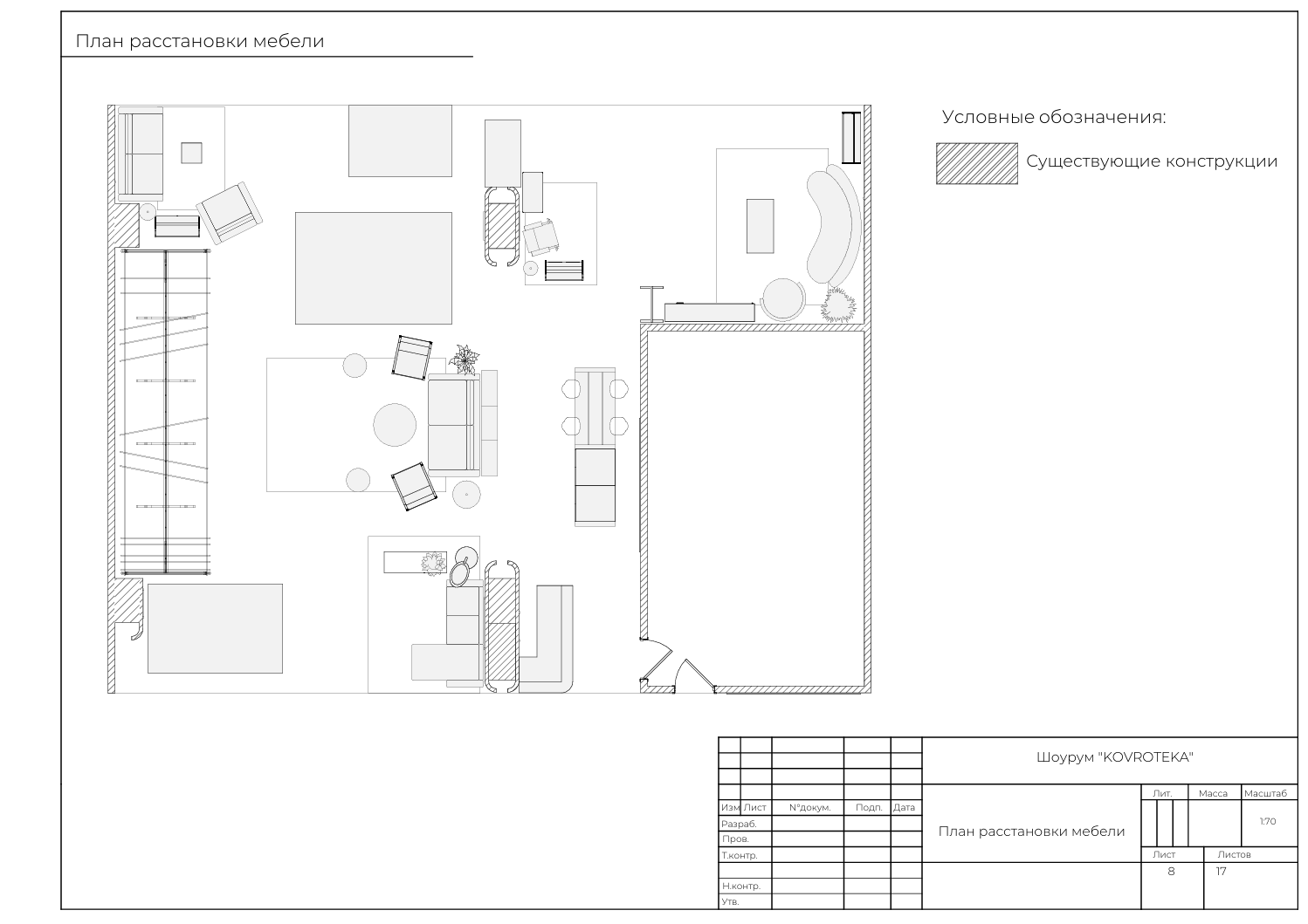
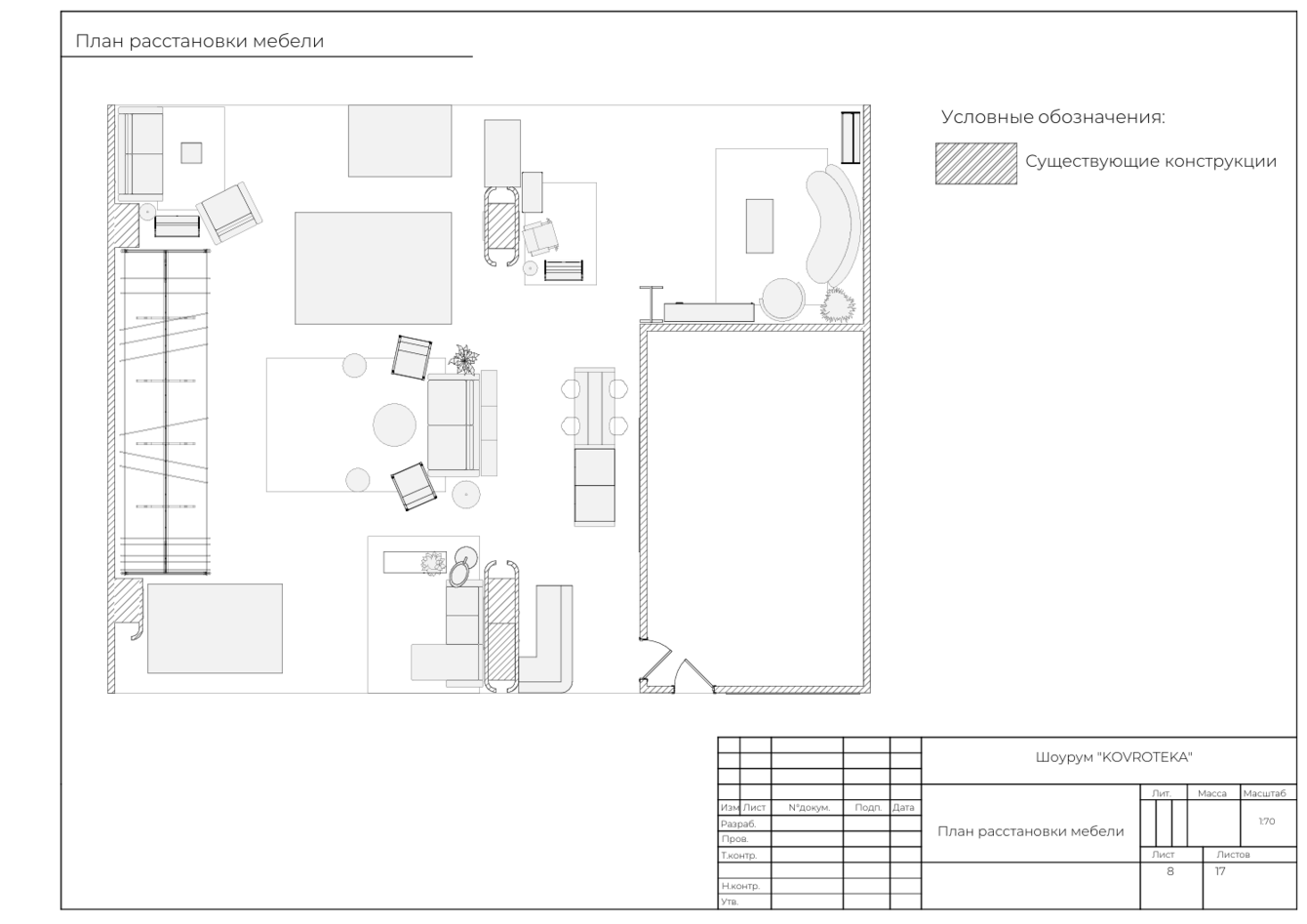
После утверждения визуальной концепции мы разработали рабочие чертежи. Мы включили:

- Обмерный план

- План монтажа

- План пола

- Схема электрики

- План освещения

- Схема освещения на расстановке мебели

- План расстановки мебели

- Развертки

1Фотореалистичные визуализации

2Рабочие чертежи

Результат

Работа над чертежами была особенно важна для понимания практической реализации концепции. Тщательно прорабатывали размеры и масштаб, чтобы все элементы вписывались в предопределенное пространство.

Евгений Хохлов
Евгений Хохлов

Россия Иваново

В результате создали не только визуальную концепцию, но и аккуратные рабочие чертежи, которые обеспечивают четкое руководство для реализации проекта. Заказчик остался доволен результатом.


Стек технологий


Оцените кейс
Спасибо за оценку
Выскажите мнение
Авторизуйтесь, чтобы добавить свой комментарий.
оставить заявку

Хотите заказать похожий проект?

Оставить заявку